Goodwill in the state of Virginia
Goodwill projects developed in Virginia by Piedmont Companies Incorporated.
Blackstone, Virginia
1312 South Main Street
Blackstone, Virginia 23824
Facility Type: Retail/Donation
Size: 15,000 Sq. ft.
Continue...
Developed by Piedmont Companies, Inc. for Goodwill of South Central Virginia, which is now Goodwill of Central and Coastal Virginia
Chesapeake (Sherrington), Virginia
/SherringtonPic.png)
100 Sherrington Drive
Chesapeake, Virginia 23320
Facility Type: Retail/Donation
Size: 16,000 Sq. ft.
Continue...
Developed by Piedmont Companies, Inc. for Goodwill of South Central Virginia, which is now Goodwill of Central and Coastal Virginia
Chesapeake (Cedar Road), Virginia
/CedarRoadPic.png)
1101 Cedar Road
Chesapeake, Virginia 23322
Facility Type: Retail/Donation
Size: 16,000 Sq. ft.
Continue...
Developed by Piedmont Companies, Inc. for Goodwill of South Central Virginia, which is now Goodwill of Central and Coastal Virginia
Danville (Corporate Upfit), Virginia
512 Westover Drive
Danville, Virginia 24541
Facility Type: Corporate Upfit
Size: 36,000 Sq. ft.
Continue...
Developed by Piedmont Companies, Inc. for Goodwill Industries of the Valleys
Fairlawn, Virginia
/FairlawnPic.png)
7498 Lee Highway
Fairlawn, Virginia 24141
Facility Type: Retail/Donation
Size: 12,000 Sq. ft.
Site Plan
Floor Plan
Continue...
Developed by Piedmont Companies, Inc. for Goodwill Industries of the Valleys
Galax, Virginia
/GalaxPic.png)
1015 East Stuart Drive
Galax, Virginia 24333
Facility Type: Retail/Donation
Size: 12,000 Sq. ft.
Site Plan
Continue...
Developed by Piedmont Companies, Inc. for Goodwill Industries of the Valleys
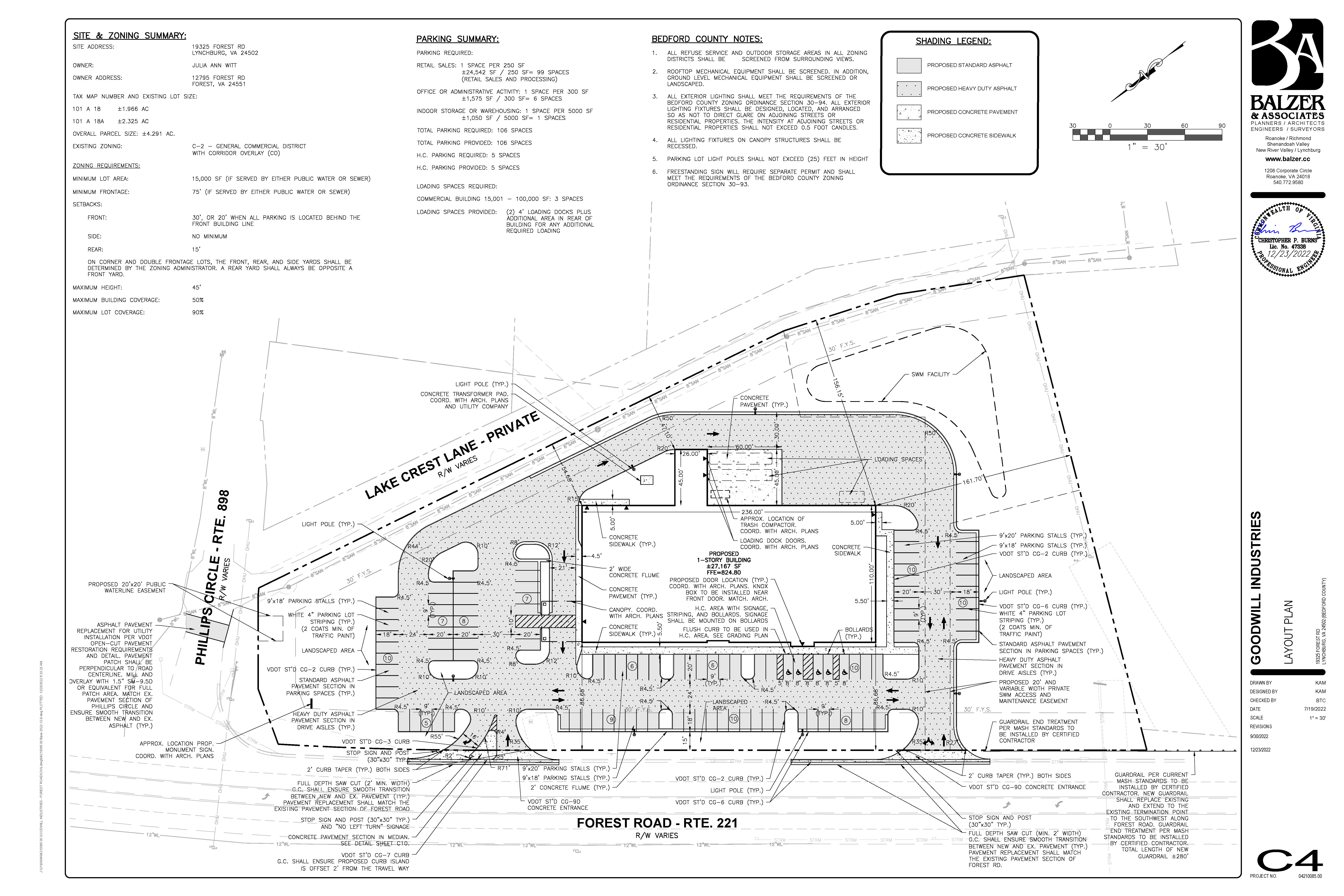
Lynchburg (Forest), Virginia
/Forest Picture for website.jpg)
19325 Forest Road
Lynchburg, Virginia 24502
Facility Type: Retail/Donation
Size: 25,000 Sq. ft.
Site Plan
Elevation
Continue...
Developed by Piedmont Companies, Inc. for Goodwill Industries of the Valleys
Roanoke, Virginia
/HollinsPic.png)
6315 Archcrest Avenue
Roanoke, Virginia 24019
Facility Type: Retail/Donation
Size: 15,000 Sq.ft.
Floor Plan
Continue...
Developed by Piedmont Companies, Inc. for Goodwill Industries of the Valleys
Pearisburg, Virginia
/Pearisburg_WebsitePic.jpg)
186 Boxwood Lane
Pearisburg, Virginia 24134
Facility Type: Retail/Donation
Size: 12,000 Sq.ft.
Floor Plan
Elevation 1
Elevation 2
Continue...
Developed by Piedmont Companies, Inc. for Goodwill Industries of the Valleys