Goodwill in the state of South Carolina
Goodwill projects developed in South Carolina by Piedmont Companies Incorporated.
Beaufort, South Carolina
137 Parris Island Gateway
Beaufort, South Carolina 29906
Facility Type: Retail/Donation/Job Link
Size: 15,000 Sq. ft.
Rendering
Floor Plan
Continue...
Developed by Piedmont Companies, Inc. for Palmetto Goodwill
Bluffton, South Carolina
/BlufftonPic.jpg)
509 Island West Park
Bluffton, South Carolina 29910
Facility Type: Retail/Donation/Job Link
Size: 25,000 Sq. ft.
Floor Plan
Continue...
Developed by Piedmont Companies, Inc. for Palmetto Goodwill
Bluffton (Second Store), South Carolina
/Bluffton 2 Tilt Picture.jpg)
2 Godfrey Place
Bluffton, South Carolina 29910
Facility Type: Retail/Donation
Size: 15,000 Sq. ft.
Site Plan
Floor Plan
Renderings
Continue...
Developed by Piedmont Companies, Inc. for Palmetto Goodwill
Charleston (Glenn McConnell), South Carolina
/CharlestonSCGlennMcConnellPic.png)
3516 Shelby Ray Court
Charleston, South Carolina 29414
Facility Type: Retail/Donation
Size: 12,800 Sq. ft.
Site Plan
Floor Plan
Continue...
Developed by Piedmont Companies, Inc. for Palmetto Goodwill
Conway, South Carolina
/ConwayPic2.png)
2913 Church Street
Conway, South Carolina 29526
Facility Type: Retail/Donation
Size: 15,000 Sq. ft.
Site Plan
Continue...
Developed by Piedmont Companies, Inc. for Palmetto Goodwill
Florence, South Carolina
/FlorencePic.png)
1551 Second Loop Road
Florence, South Carolina 29505
Facility Type: Retail/Donation
Size: 15,000 Sq.ft.
Floor Plan
Continue...
Developed by Piedmont Companies, Inc. for Palmetto Goodwill
Fort Mill, South Carolina
/Pictures/Fort Mill Tilt Pic 2.jpg)
2696 W. Highway 160
Fort Mill, South Carolina 29708
Facility Type: Retail/Donation
Size: 12,000 Sq.ft.
Site Plan
Floor Plan
Continue...
Developed by Piedmont Companies, Inc. for Goodwill Industries of the Southern Piedmont
Georgetown, South Carolina
/GeorgetownPic.png)
1520 Highmarket Street
Georgetown, South Carolina 29440
Facility Type: Retail/Donation
Size: 17,419 Sq. ft.
Elevation Rendering
Site Plan
Floor Plan
Continue...
Developed by Piedmont Companies, Inc. for Palmetto Goodwill
Goose Creek, South Carolina
/GooseCreekPic.png)
207 Saint James Avenue
Goose Creek, South Carolina 29445
Facility Type: Retail/Donation
Size: 12,000 Sq. ft.
Floor Plan
Continue...
Developed by Piedmont Companies, Inc. for Palmetto Goodwill
Hartsville, South Carolina
/Hartsville, SC Goodwill_with landscaping.png)
903 South 4th Street
Hartsville, South Carolina 29550
Facility Type: Retail/ Donation
Size: 15,000 Sq. ft.
Floor Plan
Continue...
Developed by Piedmont Companies, Inc. for Palmetto Goodwill
Hilton Head, South Carolina
/Pictures/Hilton Head Tilt Pic.jpg)
1016 William Hilton Parkway
Hilton Head, South Carolina 29928
Facility Type: Retail Boutique
Size: 7,000 Sq. ft.
Site Plan
Floor Plan
Elevation
Continue...
Developed by Piedmont Companies, Inc. for Palmetto Goodwill
James Island, South Carolina
/JamesIslandPic.png)
930 Folly Road
James Island, South Carolina 29412
Facility Type: Retail/Donation
Size: 12,800 Sq. ft.
Site Plan
Continue...
Developed by Piedmont Companies, Inc. for Palmetto Goodwill
John's Island, South Carolina
/JohnsIslandPic.png)
1758 Main Road
John's Island, South Carolina 29445
Facility Type: Retail/Donation
Size: 15,000 Sq. ft.
Site Plan
Floor Plan
Rendering
Continue...
Developed by Piedmont Companies, Inc. for Palmetto Goodwill
Lancaster, South Carolina
/LancasterPic.png)
1142 Highway 9 Byp West
Lancaster, South Carolina 29721
Facility Type: Retail/Donation
Size: 12,000 Sq. ft.
Floor Plan
Continue...
Developed by Piedmont Companies, Inc. for Goodwill Industries of the Southern Piedmont
Longs (Little River), South Carolina
/LongsPic.png)
2321 Highway 9 East
Longs, South Carolina 29568
Facility Type: Retail/Donation
Size: 25,000 Sq. ft.
Floor Plan
Continue...
Developed by Piedmont Companies, Inc. for Palmetto Goodwill
Moncks Corner, South Carolina
/MoncksCornerPic.png)
136 Rembert C. Dennis Blvd
Moncks Corner, South Carolina 29461
Facility Type: Retail/Donation
Size: 12,000 Sq. ft.
Floor Plan
Continue...
Developed by Piedmont Companies, Inc. for Palmetto Goodwill
Moncks Corner (Hwy 52), South Carolina
/Moncks Corner Picture.jpg)
483 North Highway 52
Moncks Corner, South Carolina 29461
Facility Type: Retail/Donation
Size: 15,000 Sq. ft.
Site Plan
Floor Plan
Rendering
Continue...
Developed by Piedmont Companies, Inc. for Palmetto Goodwill
Mt. Pleasant (Six Mile), South Carolina
/Mt PleasantPic.png)
1141 Six Mile Road
Mt. Pleasant, South Carolina 29466
Facility Type: Retail/Donation
Size: 12,800 Sq. ft.
Continue...
Developed by Piedmont Companies, Inc. for Palmetto Goodwill
Murrells Inlet, South Carolina
/MurrellsInletPic.png)
3655 Old Kings Highway
Murrells Inlet, South Carolina 29576
Facility Type: Retail/Donation
Size: 15,000 Sq. ft.
Floor Plan
Rendering
Continue...
Developed by Piedmont Companies, Inc. for Palmetto Goodwill
Myrtle Beach (Carolina Forest), South Carolina
/CarolinaForestPic.png)
2164 Oak Heart Road
Myrtle Beach, South Carolina 29579
Facility Type: Retail/Donation
Size: 15,000 Sq. ft.
Site Plan
Floor Plan
Continue...
Developed by Piedmont Companies, Inc. for Palmetto Goodwill
Myrtle Beach (Market Commons), South Carolina
/Pictures/Market Commons Tilt Picture.jpg)
2754 Agnes Lane
Myrtle Beach, South Carolina 29577
Facility Type: Retail/Donation
Size: 15,000 Sq. ft.
Site Plan
Floor Plan
Elevation
Continue...
Developed by Piedmont Companies, Inc. for Palmetto Goodwill
Myrtle Beach (Queens Harbour), South Carolina
/QHPic.png)
127 Loyola Drive
Myrtle Beach, South Carolina 29588
Facility Type: Retail/Donation
Size: 25,770 Sq. ft.
Rendering
Site Plan
Continue...
Developed by Piedmont Companies, Inc. for Palmetto Goodwill
N. Charleston (Ashley Phosphate), South Carolina
/AshleyPhosphatePicture.jpg)
4900 Ashley Phosphate Road
North Charleston, South Carolina 29418
Facility Type: Retail/ Donation
Size: 12,492 Sq. ft.
Site Plan
Rendering
Continue...
Developed by Piedmont Companies, Inc. for Palmetto Goodwill
N. Charleston (Corporate), South Carolina
/CorporateCharlestonPic.png)
5640 Rivers Avenue
North Charleston, South Carolina 29406
Facility Type: Corporate Office
Size: 25,000 Sq. ft.
Site Plan
Continue...
Developed by Piedmont Companies, Inc. for Palmetto Goodwill
N. Charleston (Dorchester Rd), South Carolina
/DorchesterRdPic.png)
8730 Dorchester Road
North Charleston, South Carolina 29420
Facility Type: Retail/Donation
Size: 12,800 Sq. ft.
Floor Plan
Continue...
Developed by Piedmont Companies, Inc. for Palmetto Goodwill
N. Charleston (Computer Works), South Carolina
/ComputerWorksPic.png)
6813 Rivers Avenue
North Charleston, South Carolina 29406
Facility Type: Job & Career Support
Size: 21,500 Sq. ft.
Site Plan
Continue...
Developed by Piedmont Companies, Inc. for Palmetto Goodwill
N. Charleston (Rivers Avenue), South Carolina
/RiversRetailPic.png)
5641 Rivers Avenue
North Charleston, South Carolina 29406
Facility Type: Retail/Donation
Size: 12,800 Sq. ft.
Site Plan
Floor Plan
Continue...
Developed by Piedmont Companies, Inc. for Palmetto Goodwill
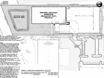
N. Charleston (Warehouse), South Carolina
/RiversWarehousePic.png)
5640 Rivers Avenue
North Charleston, South Carolina 29406
Facility Type: Warehouse
Size: 37,500 Sq. ft.
Site Plan
Floor Plan
Continue...
Developed by Piedmont Companies, Inc. for Palmetto Goodwill
N. Charleston (Palmetto Warehouse), South Carolina
/PalmettoWarehousePic.jpg)
6813 Rivers Avenue, Building 200
North Charleston, South Carolina 29406
Facility Type: Warehouse
Size: 25,000 Sq. ft.
Site Plan
Floor Plan
Elevation
Continue...
Developed by Piedmont Companies, Inc. for Palmetto Goodwill
Orangeburg, South Carolina
/OrangeburgPic.png)
1734 Saint Matthews Road
Orangeburg, South Carolina 29115
Facility Type: Retail/Donation
Size: 15,000 Sq. ft.
Rendering
Site Plan
Floor Plan
Continue...
Developed by Piedmont Companies, Inc. for Palmetto Goodwill
Pawleys Island, South Carolina
/Pawleys Island Tilt Pic.jpg)
11151 Ocean Highway
Pawleys Island, South Carolina 29585
Facility Type: Retail/Donation
Construction Type: Remodel
Size: 8,100 Sq. ft.
Elevation
Site Plan
Floor Plan
Continue...
Developed by Piedmont Companies, Inc. for Palmetto Goodwill
Rock Hill, South Carolina
/RockHillPic.png)
1926 Mount Gallant Road
Rock Hill, South Carolina 29730
Facility Type: Retail/Donation
Size: 12,000 Sq. ft.
Continue...
Developed by Piedmont Companies, Inc. for Goodwill Industries of the Southern Piedmont
Summerville (Knightsville), South Carolina
/KnightsvillePic.png)
825 Orangeburg Road
Summerville, South Carolina 29483
Facility Type: Retail/Donation
Size: 13,000 Sq. ft.
Rendering
Floor Plan
Site Plan
Continue...
Developed by Piedmont Companies, Inc. for Palmetto Goodwill
Summerville (Sangaree), South Carolina
 (Sandy)/SangareePic.png)
1817 North Main Street (Hwy 17A)
Summerville, South Carolina 29483
Facility Type: Retail/Donation
Size: 12,800 Sq. ft.
Site Plan
Continue...
Developed by Piedmont Companies, Inc. for Palmetto Goodwill
Summerville (Old Trolley Road), South Carolina
/TrollyRdPic.png)
222 Old Trolley Road
Summerville, South Carolina 29485
Facility Type: Retail/Donation
Size: 15,000 Sq. ft.
Site Plan
Floor Plan
Continue...
Developed by Piedmont Companies, Inc. for Palmetto Goodwill
Sumter, South Carolina
/SumterPic.png)
1028 Broad Street
Sumter, South Carolina 29150
Facility Type: Retail/Donation
Size: 15,000 Sq. ft.
Floor Plan
Continue...
Developed by Piedmont Companies, Inc. for Palmetto Goodwill
Walterboro, South Carolina
/WalterboroPic.png)
112 Robertson Blvd
Walterboro, South Carolina 29488
Facility Type: Retail/Donation
Size: 15,000 Sq. ft.
Floor Plan
Continue...
Developed by Piedmont Companies, Inc. for Palmetto Goodwill